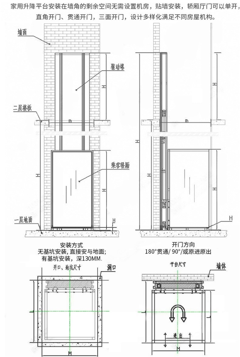
arnxngvneu
強大、高效率的一流服務團隊
專業的客服團隊、完善的服務體系
産品通過ISO9001-2008質量體系認證
全套先進檢測設備、保障産品品質
專注于家用電梯制造10年,技術成熟
産品種類齊全、庫存充足,一站式采購
現在向美利達電梯進行咨詢了解:+852-67424811
在線咨詢
美利達電梯(山東)有限責任公司是一家老牌的家用别墅電梯公司,集設計、研發、制造、安裝、維保于一體。公司注冊成立于2012年,最初主要是給其他以乘客電梯為主的綜合電梯廠貼牌配套加工别墅電梯。随着别墅電梯市場的快速崛起,美利達家用電梯也利用長期積累的技術優勢主做自有品牌美利達别墅電梯,現已成為别墅電梯全國專業家用電梯廠家。
查看更多